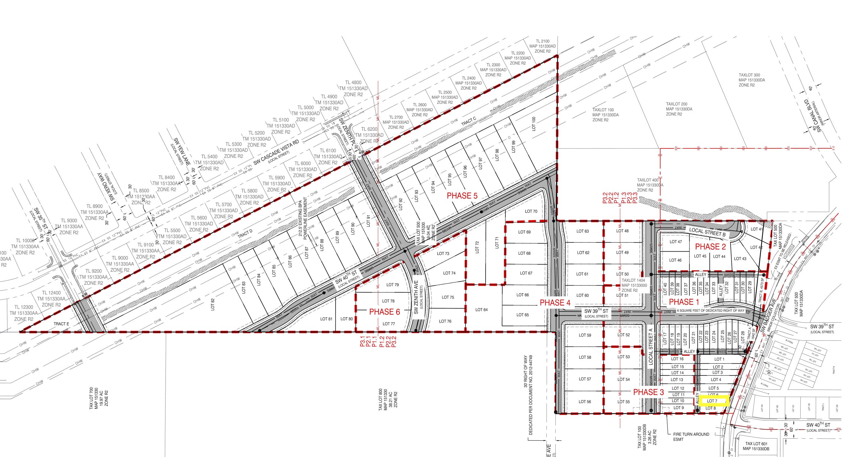
3981 SE Badger Avenue Lot 7Redmond, OR 97756
Due to the health concerns created by Coronavirus we are offering personal 1-1 online video walkthough tours where possible.




4 separate adjoining townhome lots—ideal for investors or those seeking multi-unit ownership. Both single-level & 2-level plans available or bring your own builder. SHOVEL READY w/ utilities stubbed at lot. Owen Ridge is a new neighborhood in desirable SW Redmond is featuring beautiful mountain views and located just blocks from coffee shops, gelato, a brewery restaurant, schools, and only a short distance to golf, the airport, shopping, and Bend side of town. Construction is underway on single-family homes, single & two-level townhomes. Don't miss this exceptional investment opportunity! Listing Agent related to Seller.
| 2 months ago | Listing updated with changes from the MLS® | |
| 2 months ago | Price changed to $115,000 | |
| 2 months ago | Listing first seen on site |
© 2026 Oregon Datashare (KCAR | MLSCO | SOMLS). All rights reserved. The data relating to real estate for sale on this web site comes in part from the Internet Data Exchange Program of the Oregon Datashare. Real estate listings held by IDX Brokerage firms other than Keller Williams Realty Central Oregon are marked with the Internet Data Exchange logo or the Internet Data Exchange thumbnail logo and detailed information about them includes the name of the listing Brokers. Information provided is for consumers' personal, non-commercial use and may not be used for any purpose other than to identify prospective properties the viewer may be interested in purchasing. The consumer will not copy, retransmit nor redistribute any of the content from this website. Information provided is deemed reliable, but not guaranteed. Data Services by Constellation Data Labs.
This content last updated on 2026-04-16 09:50 PM PDT. Some properties which appear for sale on this website may subsequently have sold or may no longer be available. Source: Oregon Datashare.

Did you know? You can invite friends and family to your search. They can join your search, rate and discuss listings with you.