2690 NW 26th LP NorthRedmond, OR 97756
Due to the health concerns created by Coronavirus we are offering personal 1-1 online video walkthough tours where possible.




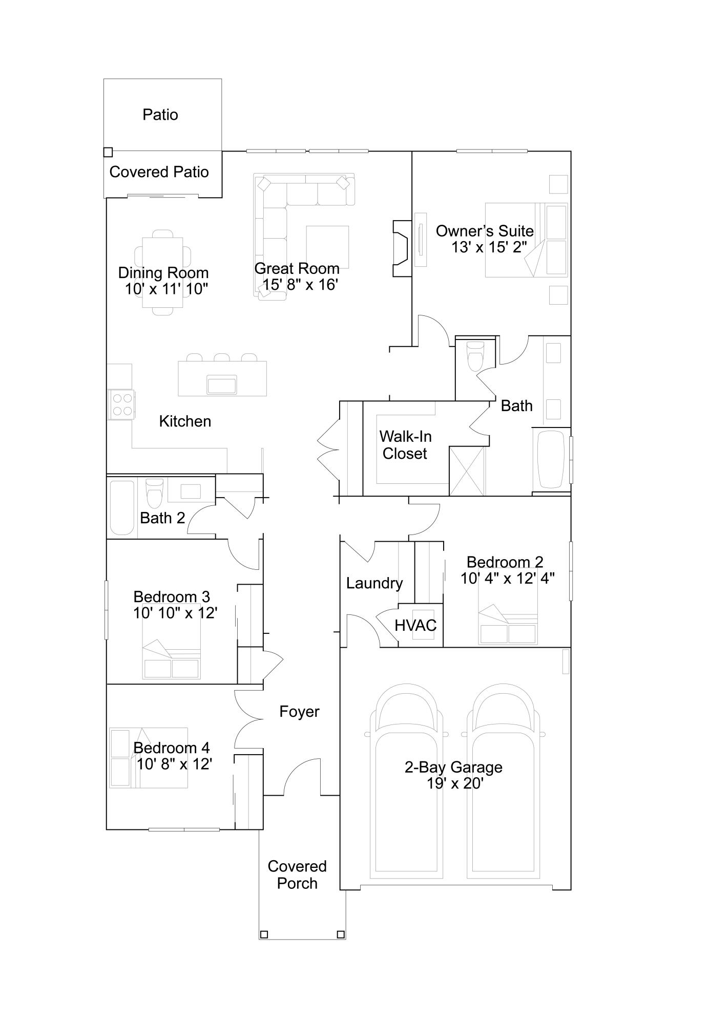
Welcome to Dry Canyon, a new 55+ Community in Redmond by Lennar with easy access to shopping, dining, and local parks. This Endicott plan is a single-story home offering an open layout plan with kitchen, family room and dining room. The owner's suite is situated in the rear of the home for increased privacy. The ensuite showcases a double vanity with separate tub and shower and a roomy walk-in closet. Three bedrooms frame the foyer, making room for guests or office/hobby spaces. Highlights include quartz counters, Shaker-style cabs with soft close hardware, LVP flooring and carpet in the living spaces with LVT flooring in the baths and laundry. Features include a gas fire place in the family room, refrigerator, washer & dryer, blinds, AC and Tankless Water Heater, all included at no extra cost. Xeriscape front landscaping with drip system. Photos are of the same plan but different model home. Site# 92 Below-market rate incentives available when financing with preferred lender!
| a month ago | Listing first seen on site | |
| a month ago | Listing updated with changes from the MLS® |
© 2026 Oregon Datashare (KCAR | MLSCO | SOMLS). All rights reserved. The data relating to real estate for sale on this web site comes in part from the Internet Data Exchange Program of the Oregon Datashare. Real estate listings held by IDX Brokerage firms other than Lennar Sales Corp are marked with the Internet Data Exchange logo or the Internet Data Exchange thumbnail logo and detailed information about them includes the name of the listing Brokers. Information provided is for consumers' personal, non-commercial use and may not be used for any purpose other than to identify prospective properties the viewer may be interested in purchasing. The consumer will not copy, retransmit nor redistribute any of the content from this website. Information provided is deemed reliable, but not guaranteed. Data Services by Constellation Data Labs.
This content last updated on 2026-03-02 07:26 PM PST. Some properties which appear for sale on this website may subsequently have sold or may no longer be available. Source: Oregon Datashare.

Did you know? You can invite friends and family to your search. They can join your search, rate and discuss listings with you.